slideshow
slideshow

5+kk, 226m2, Ohrobec

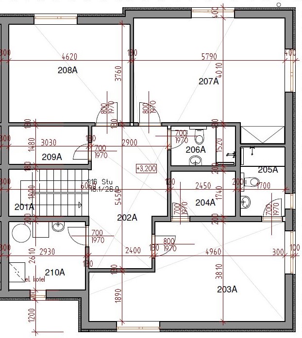
V krásné, klidné a velmi lukrativní lokalitě, si Vám dovolujeme nabídnout k prodeji nadstandartní prostorný rodinný dům  5+kk o celkové rozloze 226m2 se zahradou 535m2. Dům, dokončený v roce 2022, se nachází nedaleko hlavního města na Praze západ v obci Ohrobec. Prostor této luxusní nemovitosti je situován do dvou podlaží, z nichž v přízemí můžeme najít velkou halu z které vcházíte nejen  do prostorného obývací pokoje, který je propojen s  kuch.koutem a výstupem na terasu se zahradou, ale dále pak do pokoje pro hosty, který má samostatnou koupelnu se sprchovým koutem a toaletou ( možnost využít i jako pokoj pro rodiče ) V prostoru kuchyně je i pěkná komora. Vybavení je pouze kuch.linka, sporák, horkovzdušná trouba, lednice. První patro propojuje dřevěné schodiště, ve kterém je zabudované pohybové světelné čidlo tak i ve všech třech koupelnách. V tomto patře  se nachází 3 světlé a prostorné ložnice ( 23m2, 24m2 a 17m2 ), v jedné z ložnic je umístěna šatna a koupelna se sprchovým koutem a toaletou.  Dále zde najdeme technickou místnost, šatnu a druhou koupelnu. Ohřev vody a vytápění celého domu zajišťuje tepelné čerpadlo voda- vzduch od firmy TOSHIBA - podlahové vytápění v celém domě. Venkovní jednotka je zabudovaná na střeše domu. Veškeré dveře jsou zhotoveny z masivního dubu s magnetickým zámkem. Hliníková-antracit velkoformátová okna. Veškerá občanská vybavenost v dojezdové vzdálenosti (škola, školka, obchody, pošta, zdravotní a nákupní středisko atd.) Výborná dopravní dostupnost (cca 10 min do hlavního města, zastávka bus 331 a 333 cca 5min chůzí od domu).  Dále pak i nedaleko přírodní rezervací "Homole . Dům je připraven k okamžitému nastěhování. Vzhledem k velmi krásné, klidné a lukrativní lokalitě a ceně, tuto nabídku velmi doporučujeme. Ihned k nastěhování.

Prodej
Cena:
20.000.000,- CZK
721.241,- EUR
+ 3% provize

Ellington s. r. o.

Křižíkova 226/16

186 00 Praha 8

info@elli-real.cz

Volejte makléře:

Jana Paschke

+420 775 98 15 16

info@elli-real.cz

Zpět

Ellington s. r. o.

Křižíkova 226/16

186 00 Praha 8

ZÁKAZNICKÁ LINKA

775 981 516

email: info@elli-real.cz